Bilocale in vendita

Torino, Via san donato - San Donato
€ 69.000
2 locali 2 locali
37 Mq 37 Mq
1 bagno 1 bagno

Bilocale in vendita

Torino, Via san donato - San Donato

Descrizione annuncio

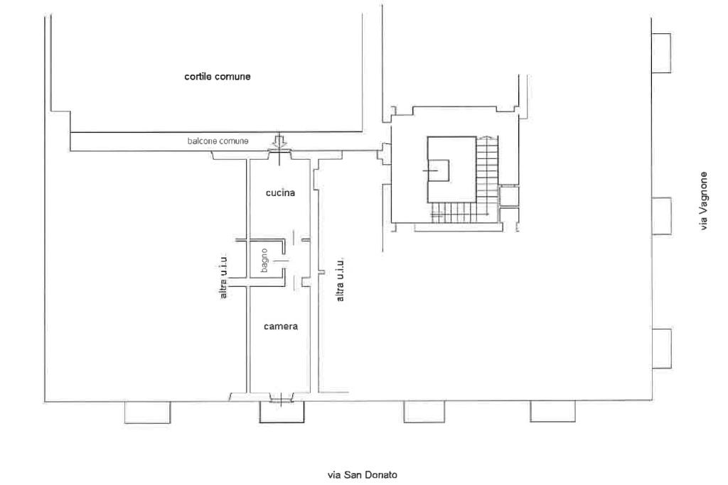
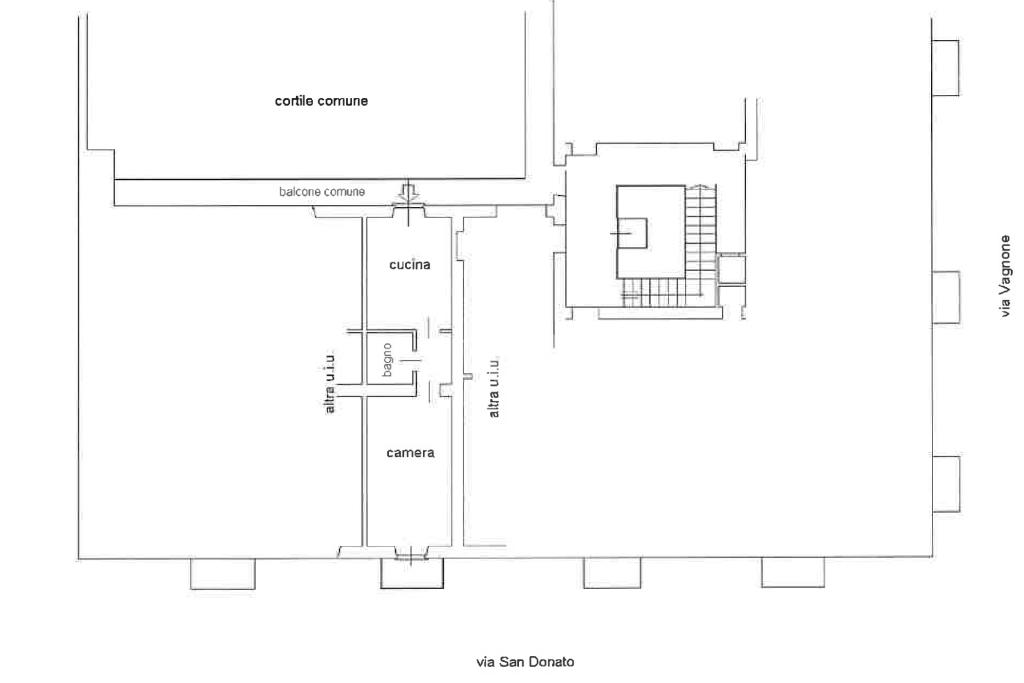
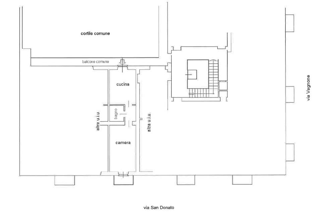
VIA SAN DONATO

In una zona ben servita, ricca di negozi di quartiere, servizi e collegamenti pubblici facilmente accessibili, appartamento di due locali situato al terzo piano di uno stabile dotato di ascensore, attualmente locato.

L’ingresso avviene dal ballatoio e conduce direttamente alla cucina abitabile; il disimpegno separa la zona notte composta da bagno cieco e camera matrimoniale con accesso al balcone affacciato su Via San Donato, che garantisce una buona luminosità agli ambienti. Gli spazi sono semplici e funzionali, adatti a chi cerca una soluzione essenziale e di facile gestione.

Circa quindici anni fa lo stabile è stato oggetto di importanti interventi di manutenzione straordinaria, tra cui l’installazione dell’ascensore, il rifacimento del tetto e della facciata, aspetti che contribuiscono a mantenere il condominio in buone condizioni generali.

Una proposta particolarmente interessante come investimento, grazie ai costi contenuti e alla buona richiesta locativa della zona, ma adatta anche a chi è alla ricerca di un pratico punto d'appoggio in città.

Mostra tutto

Nelle vicinanze

Trasporto pubblico Trasporto pubblico
Principi D'Acaja
Principi D'Acaja
480 m
Bernini
Bernini
820 m
stazione di Torino Porta Susa
stazione di Torino Porta Susa
1,0 Km
Torino Dora GTT
Torino Dora GTT
1,5 Km
Schina
Schina
220 m
Ricariche auto elettriche Ricariche auto elettriche
evway TO Statuto
790 m
Bluetorino Risorgimento
880 m
Bluetorino Porta Susa FS
960 m
evway TO Porta Susa
1,1 Km
evway TO Arbarello
1,2 Km
Scuole Scuole
Scuola Primaria "Carlo Boncompagni"
260 m
Scuola Secondaria "Antonio Pacinotti"
300 m
Istituto di Moda "Mara Scalon"
340 m
Scuola paritaria Maria Montessori
420 m
Scuola elementare Angiolo Gambaro
450 m
Farmacia Farmacia
Farmacia
90 m
Farmacia Santa Zita
210 m
Monge
310 m
Farmacia Bonanno
450 m
Manenti
480 m
Ospedali Ospedali
Ospedale Maria Vittoria
580 m
Ospedale Amedeo di Savoia
880 m
Ospedale Oftalmico
900 m
Amedeo di Savoia
980 m
Clinica Fornaca di Sessant
1,8 Km
Supermercati Supermercati
il Ferramenta
220 m
iN's
220 m
In's Mercato
320 m
Carrefour Market
360 m
Conad City
620 m
Negozi Negozi
Panificio Avetta
220 m
Spasibo
260 m
Maison del Celiaco
430 m
Bottega Sarda
470 m
Crai
510 m
Bar Bar
Il Patheon
220 m
La Cadrega
280 m
L'Aperivò
290 m
Night Club Babilonia
470 m
Peterbacco Enoteca
500 m
Ristoranti Ristoranti
Pizzeria da Michi
120 m
Il Gusto di Carmilla
130 m
Mijuna Wasy
260 m
La Gustosa
310 m
Pizzeria Queendici
340 m
Mostra tutto

Caratteristiche

Rif.:
61184286
Piano:
3 di 5 con ascensore (Piano medio)
Balconi:
1
Camere da letto:
1
Arredamento:
Assente
Condizionamento:
Assente
Mostra tutto
Prezzo Prezzo
€ 69.000
Rata mutuo Rata mutuo
€ 325 / mese
Spese annue Spese annue
€ 500
Proponi il tuo prezzoProponi il tuo prezzo

Classe Energetica

F
F
F
F
F
F
F
F
F
EP globale non rinnovabile:
164.78 kW h/m² anno
EP globale rinnovabile:
11.59 kW h/m² anno
EP invernale del fabbricato:
EP estiva del fabbricato:
Anno di costruzione:
1920
Riscaldamento:
Autonomo
Tipo impianto:
A radiatori
Tipo alimentazione:
Metano

Ti interessa visionare l'immobile?

Fissa un appuntamento  Fissa un appuntamento

Richiedi informazioni

Clicca su Leggi per aprire l'informativa
* Questi campi sono obbligatori

Calcola il tuo mutuo

Semplice e senza impegno
Anticipo

( % )
Mutuo

( % )

pochi semplici passi

inserisci i tuoi dati
Questionario completato
Grazie per aver richiesto un appuntamento senza impegno con un nostro Consulente del Credito e Assicurativo.

Hai inserito correttamente tutti i dati necessari e a breve riceverai una e-mail con un link da convalidare per inviare i tuoi dati.
Affiliato
San Donato Case Sas
Via Luigi Cibrario, 34/A 10143 Torino (TO)

Il nostro staff


  • Martina Acca
    Coordinatrice

  • Sara Caldarella
    Collaboratrice

  • Francesco Galluzzo
    Affiliato

  • Francesco L'Abbate
    Affiliato

  • Mirko Petrone
    Collaboratore
Via Luigi Cibrario, 34/A 10143 Torino (TO)
Zona: San Donato
Mostra su mappa
Affiliato
San Donato Case Sas
Via Luigi Cibrario, 34/A 10143 Torino (TO)

2026 Tecnocasa Franchising S.p.A. - P. IVA 08365160152 - Via Monte Bianco 60/A 20089 Rozzano (MI). Ogni agenzia ha un proprio titolare ed è autonoma. Privacy policy | Policy utilizzo | Cookie policy